- Situation 2, Marbuergerstrooss | L-9764 Marnach
- Maitre d'ouvrage Albra SA
- Réalisation 2015-2017
- Volume brut total 6.500 m³
- Partenaires principaux Simon-Christiansen & Associés, Luxplan, Jean Schmit Engineering, Goblet Lavandier & Associés, IBG Geotechnik
- Team Jonas Architectes Bernard Coenen, Camille Dengler, France Meunier, Frank Schmitt
À Marnach, aux abords directs de la nationale 7, en périphérie de
Clervaux, le Shopping Center Nordstrooss a été édifié entre 2015 et
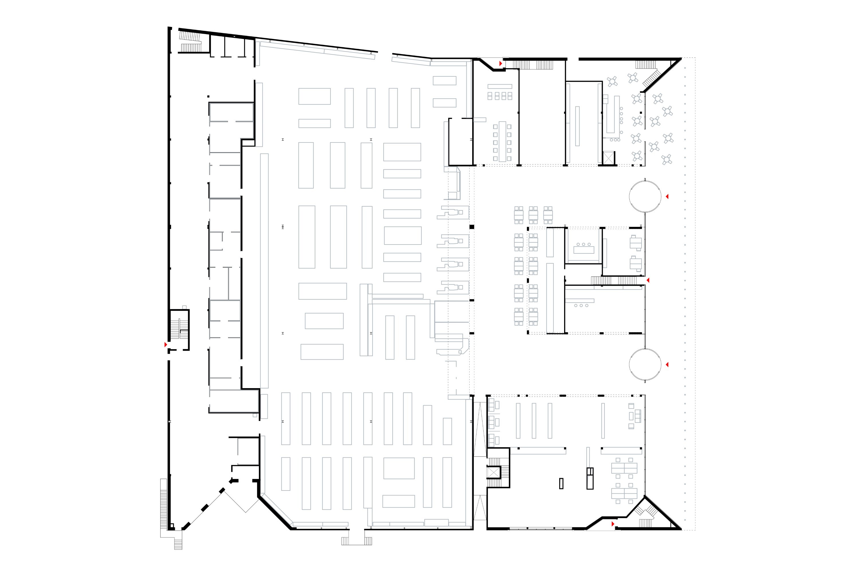
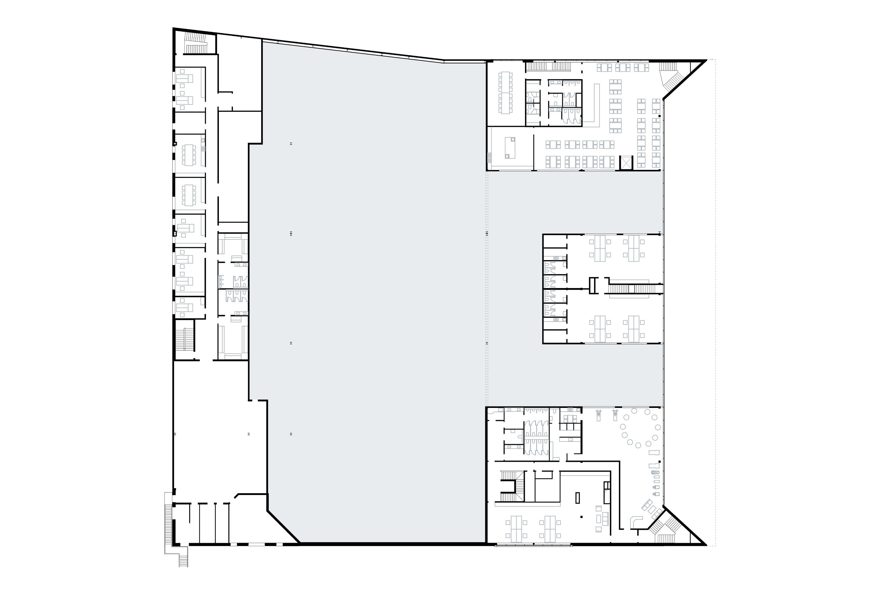
2017. Le projet architectural du centre commercial d'environ 7.600m2 a été confié à JONAS Architectes.
UN EMPLACEMENT STRATÉGIQUE :
Idéalement situé sur un axe à forte fréquentation et à proximité de nombreuses activités touristiques, le centre commercial compte 11 enseignes, un bureau de poste, une agence bancaire et un supermarché Cactus de 2.600 m2. Avec une hauteur libre de plus de 7 mètres, il s'inspire de l'atmosphère des grands marchés couverts.

SHOPPING CENTER ET LIFE CENTER :
La planification des centres commerciaux a fortement évolué. Le temps de la fonctionnalité pure et dure est révolu. Un ensemble commercial se doit d’être avant tout un lieu de vie. Il doit proposer une expérience client unique et convaincre par ses formes, l'esthétique des matériaux et son ambiance.
Le « Nordstroos shopping center », qui fait partie du grand projet « Nordstroos Shopping Mile Marnach », se définit par un langage résolument moderniste et puriste. Son aspect se caractérise par une volonté délibérée d’ouverture et de transparence, en retenue et en élégance.

L’EXPRESSION ARCHITECTURALE :
Telle la bouche béante d'un requin-baleine placide, l'entrée du bâtiment happe les regards et attise la curiosité. Notamment grâce à sa façade en verre transparent étalée sur deux étages qui agit comme une immense vitrine, pourvue d’un système de montants et de traverses. La transition entre l'extérieur et l'intérieur est conçue de manière fluide. La surface vitrée permet à la lumière du jour de pénétrer naturellement à l'intérieur du centre commercial, créant ainsi une atmosphère empreinte de luminosité et de vie. Le rayonnement positif du bâtiment interpelle. La façade en retrait invite à s'approcher. L'avant lumineux contraste fortement avec le reste du bâtiment, habillé d'une enveloppe de panneaux sandwich noirs.
Le toit surélevé par rapport au parking crée un effet spatial contrastant : le caractère sculptural de la forme est ainsi accentué. L’élévation du toit souligne l'effet d'aspiration créé par le bandeau de couleur contrastée, composé de panneaux de façade blancs à l'entrée. Les façades latérales sombres renforcent cet antagonisme visuel et créent, selon la perspective, des effets de clair-obscur métalliques et brillants.
















