

01
—
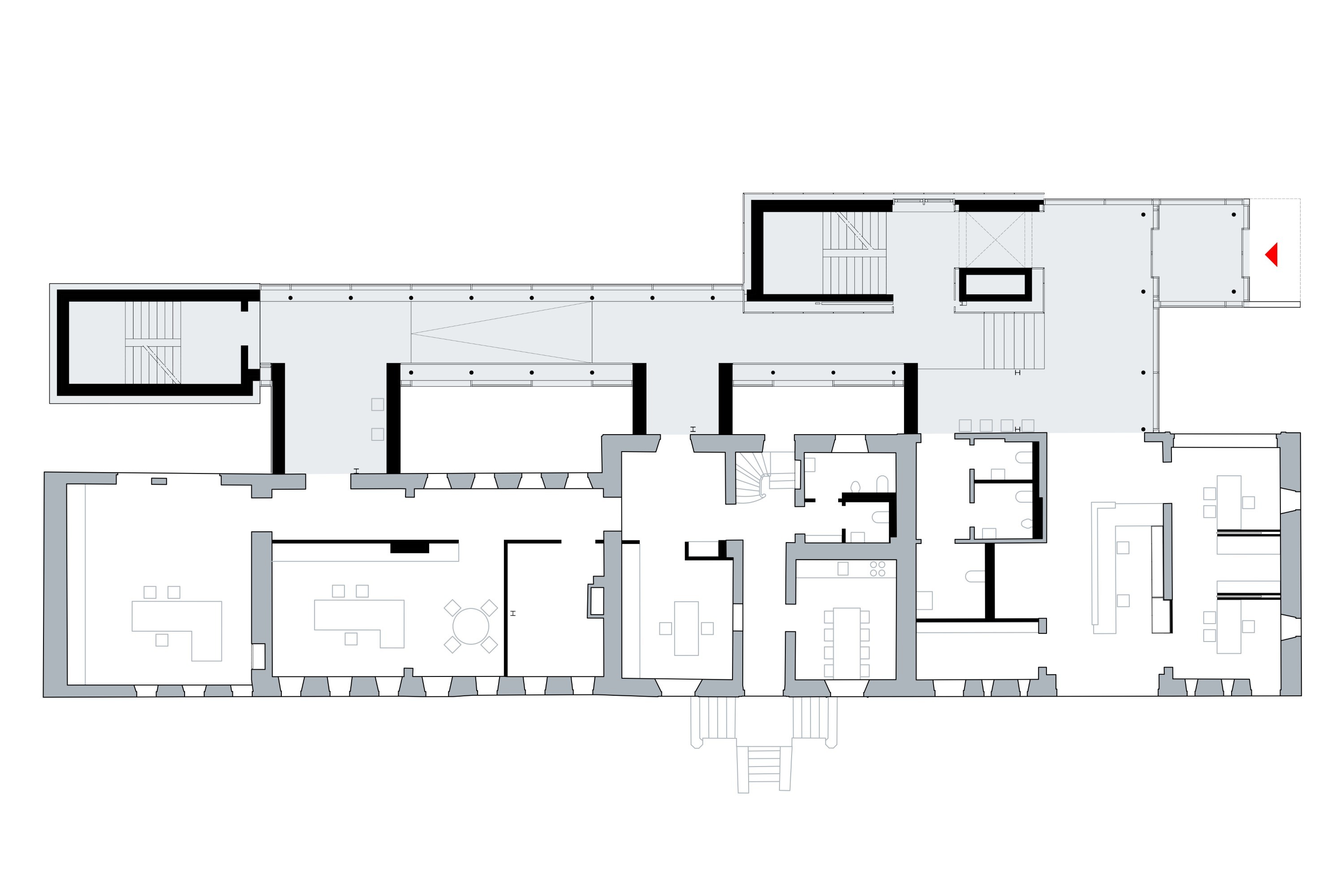
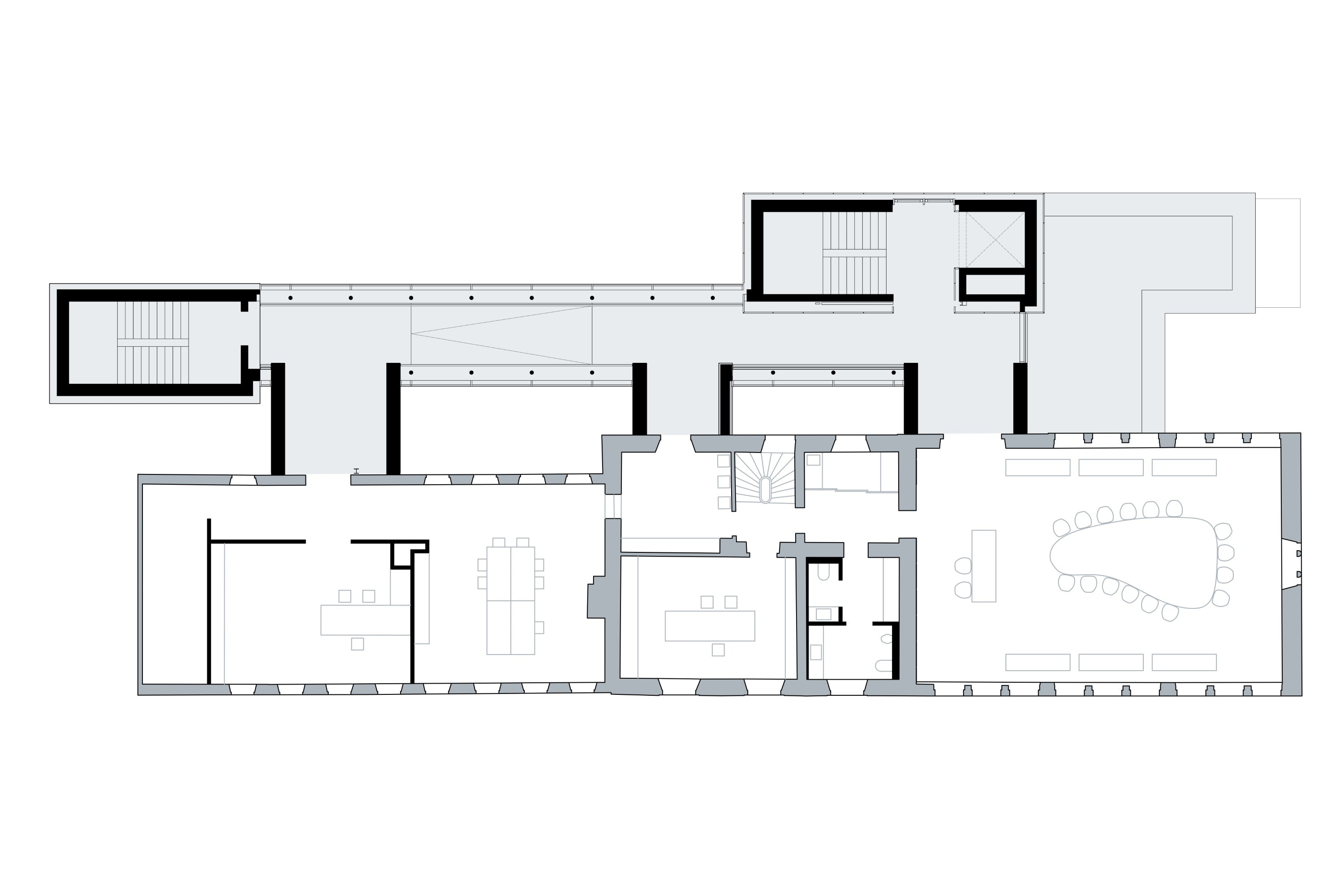
02


- Situation 22, rue Principale | L-9168 Mertzig
- Bauherr Administration communale de Mertzig
- Realisierung 2018 - 2022
- Brutto-Rauminhalt (BRI) 5.360 m³
- Beteiligte Planungsbüros Goblet Lavandier et Associés, Schroeder & Associés Ingénieurs-Conseils, Luxcontrol
- Team Jonas Architectes Martine Bettel, Jérémy Lucas, Miriam Prosch, Amandine Tourbach
Der deutsche Text ist in Bearbeitung.
Mehr Infos zum Projekt finden Sie auf der französischen Seite. Bitte klicken Sie hier.
















