CONTEXTE :
Depuis plus de 100 ans, l'entreprise Rollinger propose des services artisanaux, d'abord dans le domaine de la plomberie, puis dans celui de la construction en bois et de charpentes.
Dans le cadre d'une restructuration générale en 2018, le nom de l'entreprise est passé de « Rollinger Toiture - Marco Rollinger » à « Rollingertec - technologie et construction bois ». L'éventail de prestations de l’entreprise de toiture s’est élargi et offre désormais des compétences clés modernes et innovantes dans la technologie, l'ingénierie et la réalisation de constructions en bois, de couvertures et de façades. L’entreprise réalise des projets de toutes tailles et de grande envergure, ainsi que des constructions clés en main.
Afin de répondre aux exigences croissantes en matière de production et d'administration, la direction a décidé de construire un nouveau site de production à Bissen. Le projet global comprend la construction d'un bâtiment administratif de trois étages, d'un grand hall de production, des places de parking ouvertes ainsi que différentes aires de stockage extérieures. Dans le bâtiment administratif et le hall de production, une partie de l'espace doit fonctionner de manière autonome afin de pouvoir être louée.

LE BÂTIMENT ADMINISTRATIF
Le langage des formes clair et calme de ce bâtiment de trois étages est caractérisé par le rez-de-chaussée en retrait avec ses coins arrondis et par les étages de bureaux rectangulaires en saillie. Le lattage en bois sombre des étages supérieurs souligne la forme générale du bâtiment et confère à la façade un aspect monolithique dû à la continuité du lattage dans les zones des terrasses et de la toiture. L’apposition des lattes à espaces variés confère au bâtiment une dynamique sans prétention.
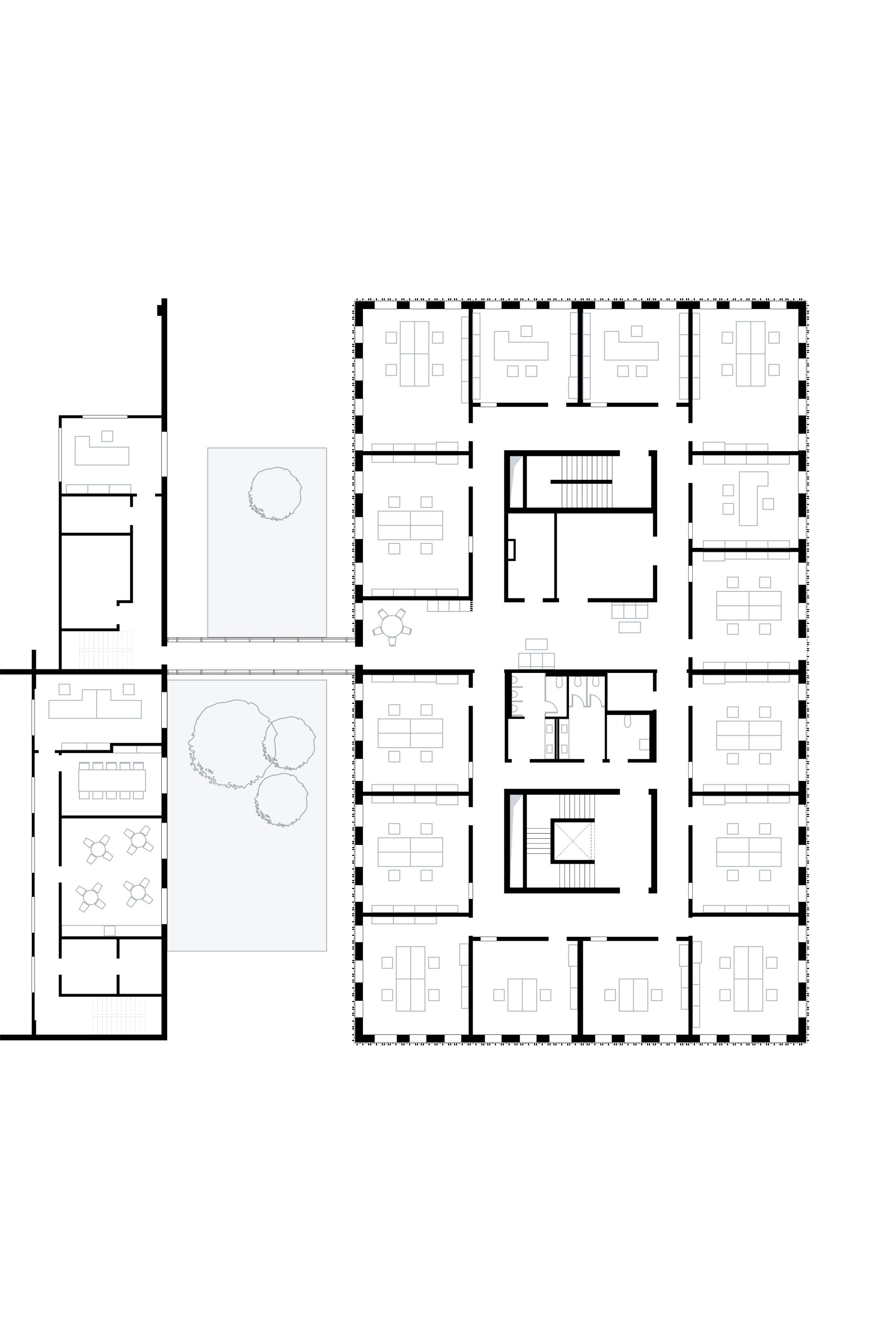
Le rez-de-chaussée, orienté vers l'Est, regroupe des fonctions communes telles que la réception, deux salles de conférences et un espace d'exposition. À l'Ouest, le bâtiment administratif est relié à l'atelier de production par une passerelle sur deux étages. Les sanitaires et les vestiaires des collaborateurs se trouvent à proximité immédiate de la passerelle de liaison.
Les bureaux sont répartis sur les deux niveaux supérieurs. Les fonctions secondaires, telles que les locaux techniques et sanitaires, sont situées dans le noyau central. Le deuxième étage abrite également la salle de pause, une salle de fitness avec les sanitaires et les vestiaires correspondants, ainsi qu'un appartement à louer disposant d’une terrasse sur le toit.


LE HALL DE PRODUCTION
D'un point de vue architectural, le hall de production jouit d’une perception volontairement discrète et filigrane, malgré sa taille importante.
Le hall de 120 mètres de long et de 80 mètres de large est divisé en deux parties qui peuvent être exploitées de manière autonome. Un grand hall de production d'une surface de 5.400m2 sera utilisé par Rollingertec. Il comprend trois grandes lignes de production, permettant de travailler des éléments de bois de petite taille, mais permet également l’assemblage d’éléments de murs et de façades préfabriqués ainsi que la fabrication de modules complets de bâtiments. Des ateliers tels que la menuiserie, la plomberie et la serrurerie, un garage automobile et un hall de stockage, d’une envergure de 2.200 m2, y sont adjacents. Une mezzanine offre des zones de stockage supplémentaires.
Un deuxième hall, plus petit, d'une superficie de 2.400m2, sera loué à une autre entreprise artisanale, de préférence un constructeur de fenêtres ou d'acier afin d'obtenir des effets de synergie avec la production issue des ateliers Rollingertec.
Le volume total du hall s'élève à environ 128.000 m3.

- Situation Am Seif | L-7759 Bissen
- Maitre d'ouvrage Rollingertec S.A.
- Réalisation en cours
- Volume brut total 128.000 m³
- Partenaires principaux INCA Ingénieurs-Conseils, Ingenieurbüro Pyttlik & Bormann, Jean Schmit Engineering, TR Engineering, MeCo Sécurité Incendie
- Team Jonas Architectes Judith Berg, Camille Dengler, Susi Grashoff, Frank Schmitt
Durabilité et construction en bois :
Dans l'ensemble, le thème de la durabilité était un leitmotiv capital pour le maître d'ouvrage et JONAS Architectes. Dans ce cas précis, la construction écologique et responsable n'est pas une question purement philosophique et écologique. Elle contribue au positionnement de l’entreprise et fait preuve des compétences inhérentes à l’activité de la société.
Pour les matériaux, l'accent a été mis sur les matières premières naturelles et les constructions ont été conçues en bois et en matériaux dérivés du bois.
La structure porteuse du toit et les voies de roulement des grues dans le hall ont été conçues à l’aide de poutres en treillis en bois. Le bâtiment administratif est construit avec des murs en bois lamellé-croisé et des éléments creux en bois de construction avec des éléments acoustiques intégrés.
Le chauffage des bâtiments fonctionne grâce à une installation centrale de chauffage aux copeaux de bois, alimentée par les déchets de bois issus du processus de production.









