Im September 2017 zog das Ettelbrucker Architekturbüro JONAS Architectes in seine neuen Räumlichkeiten in der Rue Prince Henri 32 ein. Im Laufe der Jahre ist das Büro stetig gewachsen und zählt heute rund 35 Mitarbeiter. Aufgrund dieses Wachstums wurden die damals genutzten Büroräume in der Grand-Rue in Ettelbruck zu klein, sodass man sich entschloss, in neue Räumlichkeiten zu investieren.
Sie fanden den idealen Ort für ihr Projekt in einem historischen Gebäude aus der Jugendstilzeit. Das einer alteingesessenen Ettelbrucker Familie gehörende ehemalige Wohn- und Geschäftshaus, in dem einst ein Kolonialwarenladen untergebracht war, stand bereits lange Zeit leer, sodass eine umfassende Renovierung mit dem Ziel der Umnutzung unumgänglich war. Im Laufe der Jahrzehnte war das historische Gebäude stetig erweitert worden. Aufgrund der enormen Tiefe und großer Lagerflächen, die von der früheren kommerziellen Nutzung herrührten, schien es lange Zeit unmöglich, den Bestandsbau adäquat umzunutzen.
JONAS Architectes nahm die Herausforderung jedoch an. Das
Gebäude, das sich in unmittelbarer Nähe des Bahnhofs befindet, wurde renoviert
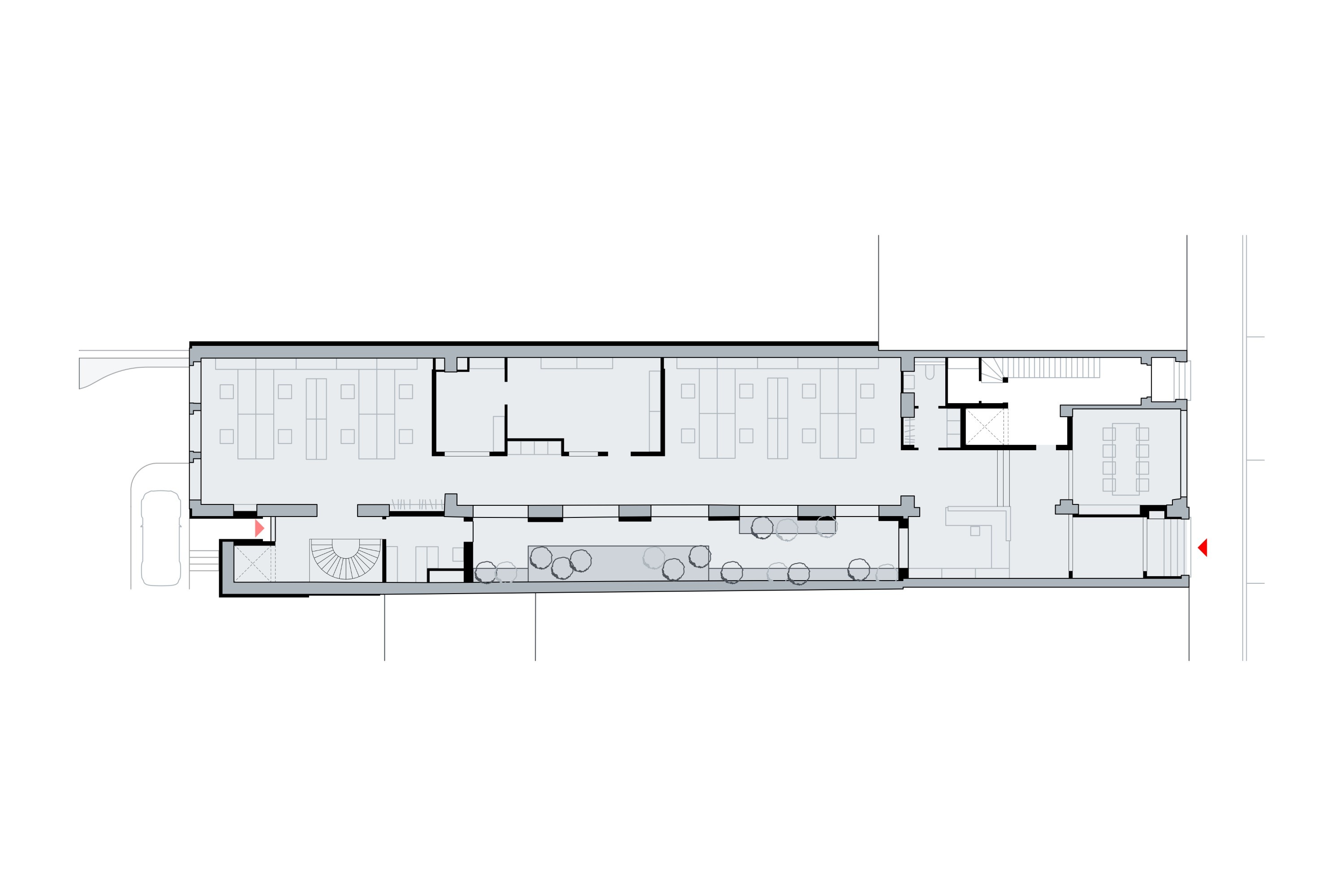
und den aktuellen Nutzungen entsprechend umgebaut: So entstanden drei geräumige
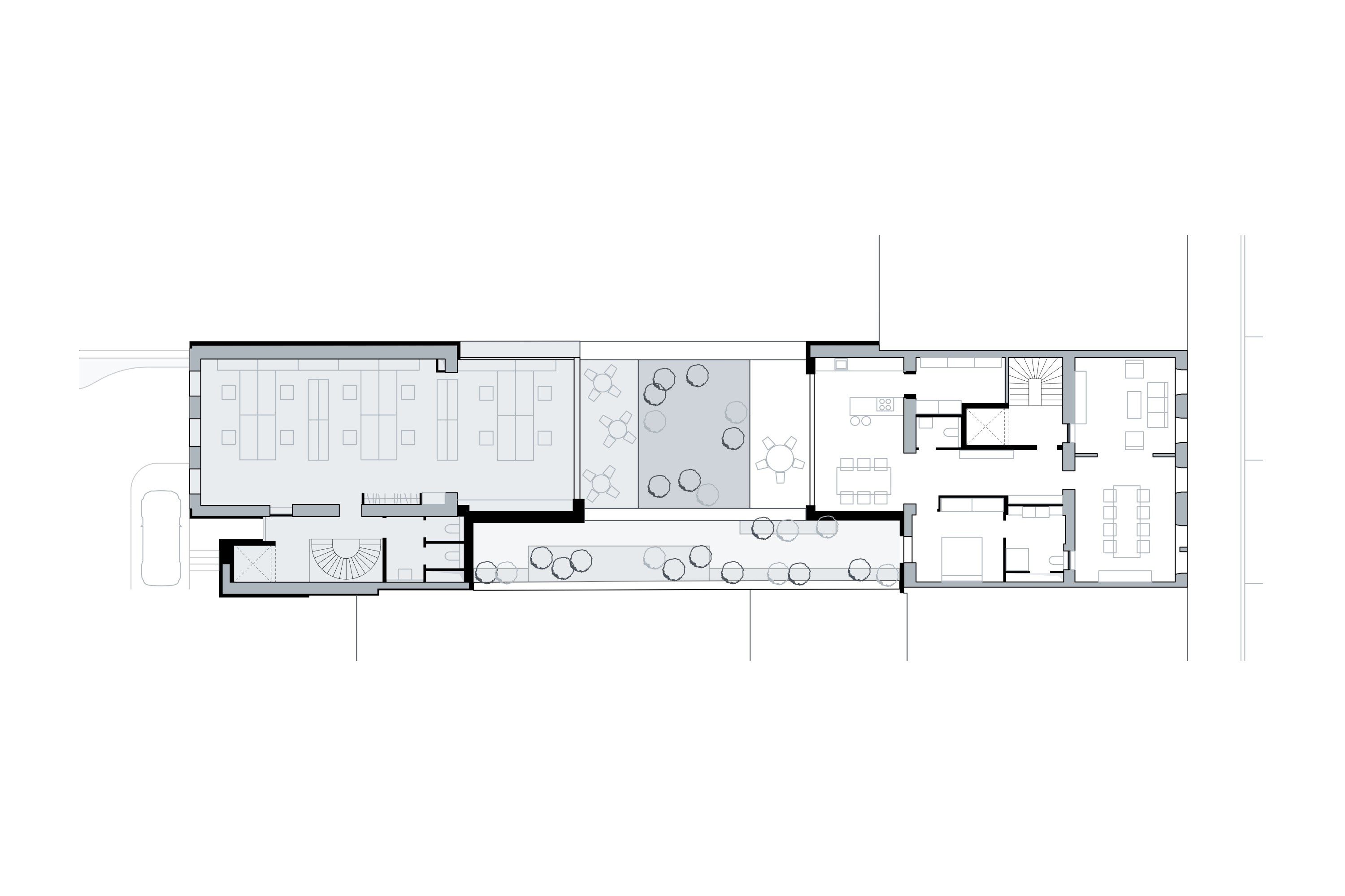
Wohnungen sowie eine 600 m2 große Bürofläche, die den Bedürfnissen
des Teams perfekt entspricht.


Mit viel Liebe zum Detail und mit großer Sorgfalt gelang es, die besonderen architektonischen Qualitäten des historischen Baus mit den hohen Anforderungen an eine zeitgemäße Nutzung in Einklang zu bringen. Die so entstandene epochenübergreifende Architektur schafft auf mehreren Ebenen offene und großzügige Räume, die helle und freundliche Arbeitsbereiche bieten. Die „Open Space“-Büros fördern die interne Kommunikation und die Teamarbeit. Den Mitarbeiter*innen stehen überdies Besprechungsräume und ein großer Personalbereich mit Küche und Bibliothek zur Verfügung.
Durch das großflächige Öffnen eines Bereichs der Decke über dem Erdgeschoss und das Abreißen der sich dort befindlichen Lagerflächen wurde ein attraktiver Innenhof geschaffen, der den angrenzenden Arbeitsplätzen ausreichend natürliches Licht spendet. Das ganze Stockwerk konnte derart in seiner gesamten Länge zu Büroräumen umgestaltet werden.
Vorder- und Hinterhaus sind lediglich über das Erdgeschoss verbunden. Während die oberen Stockwerke des Vorderhauses als Wohnungen dienen, wurden die gegenüberliegenden Ebenen des Hinterhauses zum Bürobereich hinzugenommen. Die vertikale Erschließung der Büroräume erfolgt über eine skulpturale Stahltreppe sowie über einen Aufzug. Im Vorderhaus konnte das historische Treppenhaus erhalten werden und wurde durch einen Aufzug ergänzt.


Die drei Wohnungen im Vorderhaus verfügen über einen separaten Eingang und funktionieren völlig unabhängig von den Büros.
Die aufwendigen historischen Details der zur Rue Prince Henri orientierten Haupt-/Eingangsfassade zeugen von einer Zeit wirtschaftlichen Wohlstands seiner Erbauer. Das Ziel von JONAS Architectes war es, diese denkmalwürdige und geschützte Fassade weitestgehend in ihrem ursprünglichen Zustand zu erhalten.
Im Erdgeschoss entschied sich das Büro für große Fenster mit Holz-Aluminium-Rahmen. In den oberen Stockwerken wurden ebenfalls Holz-Aluminium-Fenster nach dem Vorbild der ursprünglichen Fenster, eingebaut. Die Öffnungen der alten Rundbogenfenster des Hinterhauses wurden während den Bauarbeiten „wiederentdeckt“ und die neuen Fensterelemente wurden entsprechend dem alten Vorbild angefertigt und eingesetzt. Die jüngst verwendeten Baumaterialien und integrierten Einbauten heben sich bewusst überall vom Altbestand ab. Durch die Verwendung von nachhaltigen und robusten Materialien, unter anderem Terrazzo, Holz und rohem Stahl wurde der Unterschied zwischen dem Bestand und den neu verwendeten Werkstoffen sichtbar belassen.
- Situation 32, Rue Prince Henri | L-9047 Ettelbruck
- Bauherr Jonas Architectes, privé
- Realisierung 2016-2017
- Brutto-Rauminhalt (BRI) 4.830 m³
- Beteiligte Planungsbüros Schroeder & Associés, BETIC
- Team Jonas Architectes Henri Jonas, Camille Dengler, Frank Schmitt, Ines Thul
Heutzutage verlagern sich aus verschiedensten Gründen Handwerksbetriebe oder auch der Handel meist an die Stadtränder. Die Zeiten, in denen der Einzelhandel im Stadtzentrum angesiedelt war und betrieben wurde, sind vorbei. Nach dem Umzug in die Außenbezirke bleiben oft brachliegende Gebäude zurück, deren historische Präsenz von vergangenen Zeiten zeugt. Unter diesen Gebäuden befinden sich oft wahre Juwelen, die eine Bauqualität aufweisen, die heute nicht mehr finanzierbar wäre. Es wäre ein Sakrileg, solche historischen Schätze abzureißen und sie durch seelenlose Bauwerke zu ersetzen.
JONAS Architectes hoffen, mit dem Umbau des alten Geschäftshauses zur Revitalisierung des Bahnhofsviertels beigetragen zu haben. Mit diesem Projekt hat das Büro bewiesen, dass es möglich ist, trotz einer komplizierten Grundrisssaufteilung qualitativ hochwertige Wohn- und Arbeitsräume zu schaffen, ohne dabei wertvolle historische Bausubstanz vollständig und unwiederbringlich zu zerstören. Es bleibt zu hoffen, dass dieser Ansatz andere Eigentümer dazu ermutigen wird, diesem Beispiel zu folgen.


























