- Situation 54, Grand-Rue | L-9711 Clervaux
- Bauherr Privat
- Realisierung 2022
- Brutto-Rauminhalt (BRI) 4.102 m³
- Beteiligte Planungsbüros DO ING
- Team Jonas Architectes Corinne Stephany, Simon Tourbach
Im Herzen von Clervaux, am Standort des ehemaligen Postamts, befindet sich heute die „Residence Al Post“. Das ursprüngliche Gebäude wurde im Laufe der Jahre mehrfach umgebaut und entsprach nicht mehr den heutigen Standards und Vorgaben, unter anderem deshalb, weil es nicht barrierefrei war. Deshalb entschied sich der Bauherr für einen vollständigen Neubau.
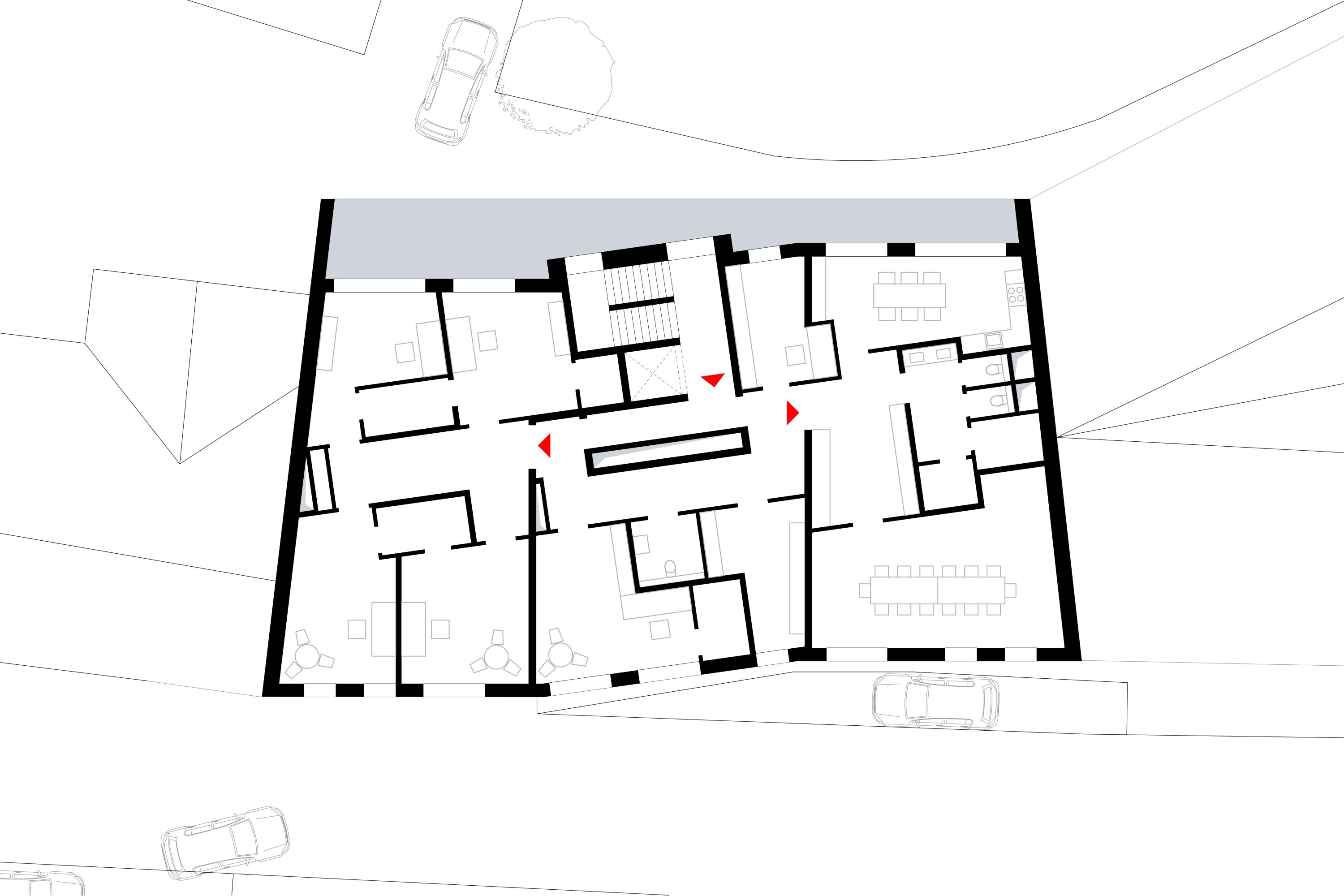
Das fertige Objekt fügt sich harmonisch in das lebendige Stadtviertel ein, das aus Reihenhäusern, Wohnanlagen und kleinen Geschäften besteht und idyllisch an der Klerf liegt. Die Architektur wurde bewusst an die Umgebung angepasst; die gegliederte Hauptfassade orientiert sich an den Linien des Nachbarhauses. Das untere Drittel der Fassade schließt nahtlos an das benachbarte Gebäude an, während das erste Obergeschoss leicht übersteht, um die Eingangsbereiche klar erkennbar zu machen und um sie vor Wind und Wetter zu schützen. Entlang der Straße führt eine sanft ansteigende Rampe zum Geschäftseingang und eine überdachte Durchfahrt verbindet die Straße mit dem Eingang der „Residence“ und mit einer bestehenden Brücke. Letztere führt zur anderen Seite des Flusses, wo sich die Parkflächen, Garagen und der Müllraum befinden.
Bei der Fassadengestaltung wurde sorgfältig auf die benachbarten Gebäude geachtet. Das erste Obergeschoss sowie ein Drittel des Erdgeschosses sind mit einem weißen Dämmputz versehen. So harmoniert die „Résidence“ optisch mit den umliegenden Gebäuden. Das zweite Obergeschoss hingegen setzt sich durch zurückversetzte Loggien und eine Metallverkleidung ab, die sich an den traditionellen Mansardendächern der Umgebung orientiert. Diese Metallverkleidung findet sich auch an den Dachgauben der dritten und vierten Etage wieder, die aus dem Naturschieferdach ragen.
Das Gebäude ist aus einer Beton- und Holz-Hybrid-Konstruktion angefertigt. Deckenplatten, Treppenhaus und Aufzugschacht sowie tragende Innen- und Brandwände bestehen aus Ortbeton; die Fassaden aus Massivholzplatten (CLT), die mechanisch an den Decken befestigt wurden. Durch diese Bauweise konnte das Gesamtgewicht der Fassaden minimiert und zugleich größere Spannweiten zwischen den tragenden Wänden erzielt werden. Dadurch können die Wohnräume flexibler gestaltet werden. Die obersten beiden Etagen bestehen vollständig aus Massivholz. Sämtliche Holzelemente wurden vorgefertigt und vor Ort nur noch montiert.
Es wurde besonders darauf geachtet, die Übergänge zwischen Holz- und Betonelementen sauber zu verarbeiten, um unter anderem eine optimale Schalldämmung zu gewährleisten.











